Austin Ridge

Stafford, Virginia

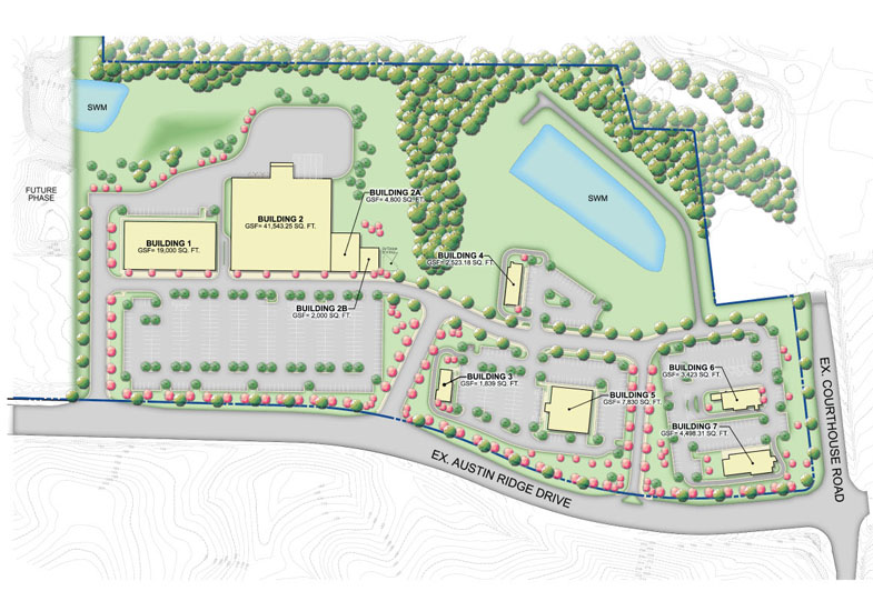
A shopping center in development, Austin Ridge Center is located in fast growing Stafford, VA. The Courthouse Road corridor west of I-95 has nearly 3,000 homes in the development pipeline with an annual population growth of 5%, making the center’s location at the northwest quadrant of I-95 (2016 AADT of 136,000 vehicles) and Rt. 630 (Courthouse Road) more than ideal. It's planned to have several retailers across seven buildings on a large, lush campus with two ponds and park-like green space. Phase I has five pad sites available for ground lease. Phase II (13 acres) is available for sale or an anchor build-to-suit. Phase III has an additional 18 acres for future development. Owned and developed by Rucker Properties Inc., Van Metre is proud to be a part of the development process and excited to manage the center once it delivers.

Location

Austin Ridge Drive
Stafford, VA 22554

The planned location of Austin Ridge is in eastern Virginia, along Austin Ridge Drive in Stafford.

VP of Commercial Leasing
Ty Hausch
(703) 272-2680

Site Plan

A Bird's Eye View

Austin Ridge Center will have key access and amazing visibility. The I-95 interchange is undergoing a two-year redevelopment of the Rt. 630 interchange. With the new, reverse diamond design, visibility to the center from the elevated southbound exit ramp will be unparalleled. Courthouse Road is planned to be widened to four lanes allowing for signage opportunities. Access to the property will be via three entrances of Austin Ridge Drive, one of which will be signalized.